

一、NE系列板鏈斗式提升機概述:
NE系列板鏈斗式提升機適用于粉狀、顆粒狀、小塊狀磨琢性或無磨琢性物料的輸送,如生料、水泥、煤、石灰石、干粘土、熟料等,物料溫度控制在250℃以下。該系列提升機采用流入式喂料,誘導式卸料;物料流入料斗內靠板鏈提升到頂端,在物料重力作用下自行卸料。主要技術參數符合機械部標準(JB3926-85)。 NE型板鏈斗式提升機是引進國外先進技術而研制的新型提升產品;由于節能高效,NE型板鏈斗式提升機正在逐步替代HL型斗式提升機。鏈條是優質合金鋼高強度板式鏈條,耐磨可靠。驅動部分采用硬齒面減速器。
二、NE系列板鏈斗式提升機產品特點:
1、密封性好,環境污染少。
2、操作、維修方便、易損件少。
3、由于節能和維修少,使用成本極低。
4、運行可靠,先進的設計原理,保證整機運行的可靠性,密封性好,環境污染少。
5、結構剛性好,精度高。機殼經折邊和中間壓筋,再經焊接,剛性好、外觀漂亮。
6、機械尺寸小,與同等提升量的其它各種提升機相比,這種提升機的機械尺寸較小。
7、輸送能力大,該系列提升機具有NE15~NE800多種規格。提升量范圍為15~800m3/h。損耗少,噪聲低,壽命長。
三、NE系列板鏈斗式提升機主要結構及特點:
NE系列板鏈式斗式提升機由運行部件、驅動裝置、上部裝置、中部機殼、下部裝置組成。
1、上部裝置:安裝有軌道(雙排道),防止鏈條擺動,逆止器,防止料斗回轉,物料阻滿下部機殼,卸料口裝有橡膠板防止回料。
2、中間節:部分中間節裝有軌道(雙排節)以防止鏈條工作中擺動,部分中間節裝有檢修門以便維修。
3、下部裝置:安裝有張緊裝置, NE15~NE50采用彈簧張緊,HNE100~HNE800采用重錘箱張緊。
4、上下鏈輪采用 ZG310-570。整體調質,HB229-269齒面淬火
5、板鏈:鏈板采用 45 # HRC36~42 。
a、采用的板鏈有較高的剪切強度、疲勞強度及耐磨性能,運轉故障率低,使用壽命長;
b、采用較低的鏈速度(0.5米/秒);
c、采用大容量的料斗和較小的斗距,驅動功率低且輸送量大,尤為適應提升破碎后的石灰石和水泥熟料(≥NE50)。

四、NE系列板鏈斗式提升機特點及技術要求:
1、采取了流入式喂料,使輸送機各部分以及和物料之間很少發生擠壓和碰撞,運行平穩,維修方便。
2、輸送鏈采用板鏈的面接觸,替代傳統斗提環鏈的點接,從而使用壽命提高,輸送鏈壽命可達五年以上。
3、因采取了流入式喂料,重力誘導式卸料,斗低線速高(15-30m/min),無回料現象功率只相當于普通環鏈斗提機的40%左右。
4、運轉率高,無故障運行可達3萬小時以上。
5、輸送能力大,輸送時范圍15-800m3/h。
¤合金鋼耐磨套筒滾子鏈:
1、精選特鋼廠生產的優質材料,先進的熱處理工藝。
1)、內外鏈板:40Cr ;
2)、銷軸:20CrMnMo ;
3)、套筒:20CrMo ;
4)、滾子:20CrMo;調質HB293-365 ;
炭氮共滲(0.5mm)淬火HRC55-62;
炭氮共滲(0.5mm)淬火HRC55-60;
炭氮共滲(0.5mm)淬火
2、德國進口的網袋式自動翻轉熱處理設備,均勻透徹滲碳淬火。
1)、銷軸和外鏈板固定,套筒和內鏈板固定有效的減少承載部件的磨損。
2)、銷軸和套筒、滾子和套筒根據物料采取不同的間隙配合,防止物料對鏈條的磨損和節距伸長。
3)、外鏈板沖壓成彎板結構既方便固定斗子,又減少運載機構的使用空間。
3、采取普檢和破斷拉伸實驗檢測手段,充分保證技術要求。
¤頭部鏈輪:
1、結構:由輪轂和分體齒圈組成。
2、材質:輪轂ZG45;齒圈20CrMo鍛鋼;高強度鉸直栓。
3、技術數據:分低速12個齒,高速24個齒兩種。
4、加工方法:線切割同步整體加工;安裝后分割。
5、熱處理方法:輪轂調質HB217-255;齒圈表面淬火硬度
¤尾部鏈輪
1、材質:ZG35Mn。
2、技術數據:光輪無齒精車。
3、熱處理:中頻淬火HRC55-60。
4、尾輪光齒能有效的防止頭尾不同步引起的跳齒和磨損現象。
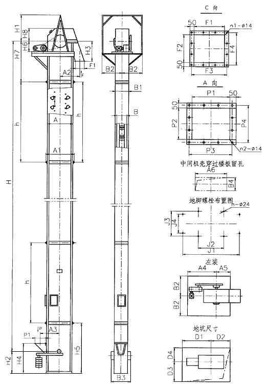
五、NE型板鏈斗式提升機安裝尺寸圖:

六、NE系列板鏈斗式提升機技術參數表:
| 型號 | 提升量 平方米/小時 | 物料大塊度 | ||||
| 占百分比 % | ||||||
| 10 | 25 | 50 | 75 | 100 | ||
| NE15 | 15 | 65 | 50 | 40 | 30 | 25 |
| NE30 | 32 | 60 | 75 | 58 | 47 | 40 |
| NE50 | 60 | 90 | 75 | 58 | 47 | 40 |
| NE100 | 110 | 130 | 105 | 80 | 65 | 55 |
| NE150 | 170 | 130 | 105 | 80 | 65 | 55 |
| NE200 | 210 | 170 | 135 | 100 | 85 | 70 |
| NE300 | 320 | 170 | 135 | 100 | 85 | 70 |
| NE400 | 380 | 205 | 165 | 125 |
105 |
90 |
| NE500 | 470 | 240 | 190 | 145 | 120 | 100 |
| NE600 | 600 | 240 | 190 | 145 | 120 | 100 |
| NE800 | 800 | 275 | 220 | 165 | 135 | 110 |
NE板鏈斗式提升機圖片:


